c 4:00 до 13:00 МСК
sale@kotel-kv.ru
8 (800) 551-70-98
Бесплатно по России
Видео
Фото
Чертеж
Подберите необходимую мощность котла в несколько кликов!
Подбор котла
Уточните ваш запрос, если товар не подходит

Котел КВм 2000 кВт с ТШПМ

Цена котла КВм 2000 кВт с ТШПМ 1 742 000 рублей

Уточнить цену с доставкой до вашего города
Условия поставки:
В наличии на складе
ТК по России и Казахстану
Безналичный расчет
Этот товар вы можете купить в лизинг

Модель с механической топкой с шурующей планкой ТШПМ

Дутье и тяга регулируются шиберами, поставляются в комплекте с котлом

Труба сталь 20 повышенной прочности устойчива к коррозии, обеспечивает высокую теплопроводность

КПД свыше 80 %, минимальный расход топлива

Компактные размеры

Выход на номинальную мощность - 2-4 часа

Запас по мощности 15 %, сверх номинальной

Требования к качеству питательной воды минимальны

В конструкции предусмотрены люки для очистки поверхностей нагрева

Отапливаемая площадь помещения от 16700 до 21900 м2, отапливаемый объем от 50000 до 65700 м3.

Температура 95 - 115 градусов.

Технические характеристики
Комплект поставки
Дополнительно потребуются
Отзывы
Марка котла Котел КВм, Котел средней мощности Вид топки Топка ТШПМ
Максимальная тепловая мощность, кВт 2000 Отапливаемая площадь, м² 16700-21900
Максимальная тепловая мощность, МВт 2 Отапливаемый объем, м³ 50000-65700
Максимальная тепловая мощность, Гкал 1.72 Топливо Уголь, Твердотопливный
КПД (УГОЛЬ), не менее, % 80 Тяга Уравновешенная
Аэродинамическое сопротивление, Па (мм. вод. ст.) 200 Давление рабочей среды, МПа (кгс/cм²) 0.3-0.6
Температура уходящих газов, °C 200 Гидравлическое сопротивление при перепаде t, МПа (кгс/cм²) Не более 0.07 (0.7)
Расход топлива среднечасовой за отопительный сезон, кг/ч 196 Габаритные размеры котельного блока, длина*ширина*высота, мм 2630*1965*2675
Расход топлива при максимальной нагрузке котла (УГОЛЬ), кг/ч 393 Габаритные размеры котла с топкой, длина*ширина*высота, мм 4485*1965*3065
Расход теплоносителя среды, м³/ч 68 Тип котла Водогрейный, Промышленный
Расход условного топлива, кг/ч 295 Температура воды, °C 70-95, 90-115
Низшая теплота сгорания топлива УГОЛЬ, кКал/кг 5230 Энергоэффективность Высокая
Масса, кг 5200 Бренд HeatExpert

Это устройство работает со вспомогательным оборудованием, которое приобретается отдельно. Если вы хотите сразу узнать стоимость всей установки, добавьте заинтересовавшие вас позиции в корзину. Чтобы точно расчитать стоимость доставки до вашего объекта, укажите его адрес в корзине и оправьте нам заявку. Обычно мы отвечаем в течение дня.

Автоматика котла КВм Автоматика котла КВм 2 МВт
Тип управляемого оборудования
Котел КВм с ТШПМ
190 000
Насос TD Насос TD80-30 G2 (11 кВт)
Цена скоро
появится
Насос CHL Насос CHL 8-30 (1.1 кВт)
106 100
Дымосос ДН 8 с дв. 15/1500 Дымосос ДН 8 с дв. 15/1500
Производительность, тыс. м³/час
3.6-17
Полное давление, Па
800-2250
214 500
Золоуловитель ЗУ 2,15 Золоуловитель ЗУ 2
Применяемость с котлами, МВт
2.0-2.5
Производительность циклона, м³/ч
9060-13220
100 000
Транспортер ТС-2-30 золошлакоудаления Системы шлакозолоудаления
Производительность, т/ч
до 30
Транспортируемый материал
Топливо, уголь, шлак, зола и прочее
1 150 000
Транспортер ТС-2-30 топлива Конвейер топлива
Производительность, т/ч
до 30
Транспортируемый материал
Топливо, уголь
1 200 000
Бункер угля Бункер угля
Цена скоро
появится
Бункер шлака Бункер шлака
Цена скоро
появится
Дробилка ВДП 15 Дробилка ВДП 15
Производительность, т/ч
15
1 007 000
Об этом товаре еще нет отзывов. Будьте первым!
Оставьте ваш отзыв
Котел КВм с топкой ТШПМ
Промышленные котлы КВм с топкой ТШПМ
Изготовление котла КВм с топкой ТШПМ
Котлы КВм с топкой ТШПМ
Производство котлов КВм с топкой ТШПМ
Топка ТШПМ котла КВм
Промышленный котел КВм с топкой ТШПМ
Изготовление промышленного котла КВм с топкой ТШПМ

Котел КВм с ТШПМ

Котлы КВм с ТШПМ промышленные

Котел КВм с ТШПМ - изготовление

Котлы КВм с ТШПМ

Котлы КВм с ТШПМ - производство

Топка ТШПМ котла КВм

Котел КВм промышленный с топкой ТШПМ

Промышленный котел КВм с ТШПМ - изготовление

Водогрейный котел КВм 2000 кВт с топкой ТШПМ. Характеристики:

  • мощность 2.0 МВт, 2000 КВт, 1,72 ГКал;
  • температура 95, максимальная температура 115 градусов
  • давление 0,6 МПа;
  • топка механическая с шурующей планкой ТШПМ;
  • отапливаемая площадь котла от 16700 до 21900 кв м, отапливаемый объем от 50000 до 65700 м3 (в зависимости минимальной температуры в регионе эксплуатации). Проверить или подобрать мощность механического котла с ТШПМ для вашего региона или любого другого города вы можете по ссылке.
  • устанавливается в котельных административных, производственных зданий, отопительных котельных ЖКХ и блочно модульных котельных.

Устройство и описание механического котла КВм 2000 кВт с ТШПМ-2.0

Конструкция механического котла КВм 2000 кВт с планкой состоит из двух блоков – топки ТШПМ-2.0 и водогрейного котельного блока КВм.

Топочная камера механизированного котла КВм выполнена из стальных труб 57 с вваренной стальной полосой. Горячие газы выходят из топки вверху топочной камеры и поступают в конвективные секции. Секции конвективных пакетов устанавливаются двумя блоками. Горячие газы из котельного блока выходят в задней части сверху.

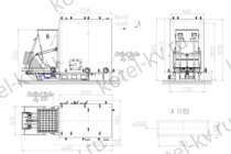
Чертеж котла КВм 2000 кВт с ТШПМ Котел КВм 2000 кВт с ТШПМ чертеж Водогрейный котел КВм мощностью 2000 кВт поставляется в тепловой изоляции выполненной из плиты ПТЭ и полимерного оцинкованного листа. Для очистки конвективных секций в обмуровке предусмотрены лёгкосъёмные люки.

Циркуляция котла обеспечивает быстрый нагрев воды и выход на требуемую мощность. Локальные перегревы отдельных зон поверхностей нагрева исключаются точностью производимых расчетов гидравлики. Дренажи и воздушники производят дренирование трубной системы от шлама и удаление скапливающего воздуха.

Принцип работы твердотопливного водогрейного котла с ТШПМ

Топливо загружается в бункер топки ТШПМ транспортером топливоподачи ТС-2-30. Из бункера уголь ссыпается на блок решетку топки. Горящее топливо перемещается по блок решетке шурующей планкой. Образующаяся зола и шлак накапливается в задней части топки на поворотных колосниках. При принудительном опрокидывании шлак ссыпается в канал золоудаления и транспортером золы и шлака перемещается за пределы котельной.

Твердое топливо сгорает в топке. Горячие газы омывают трубную систему и нагревают воду. Максимальная температура воды в котле 115 градусов.

Циркуляция воды в котельном агрегате производится циркуляционным насосом. Для восполнения теплоносителя, теряемого при дренировании и в теплосети, производится подпитка подпиточным насосом.

Схема установки котла КВм с золоуловителем Схема установки котла КВм с золоуловителем Для горения топлива вентилятором в топку подается воздух. Дымовые газы проходят трубную систему котельного блока и поступают в газоходы котельной. В газоходах может устанавливаться золоуловитель ЗУ-2.15. Для преодоления сопротивления газоходов и золоуловителя перед дымовой трубой монтируется дымосос ДН 8. Далее газы через дымовую трубу поступают в атмосферу.

Щит управления котла КВм 2000 кВт ограничивает предельно допустимые параметры работы, температуру и давление воды, минимальный расход теплоносителя, поддерживает минимально допустимое разряжение. Автоматика управляет временем движения шурующей планки. Это время настаивается в зависимости от калорийности и фракционного состава топлива, а также температурного графика котельной.

Водно-химический режим водогрейного котла должен быть организован в соответствии с требованиями руководства по эксплуатации и нормативной литературы по тепловым энергоустановкам и тепловым сетям. Для подбора водоподготовительной установки требуется провести химический анализ воды.

Подключение котла КВм 2000 кВт с топкой ТШПМ

Схема подключения котла КВм Схема подключения котла КВм Подключение и монтаж механического котла с шурующей планкой производятся по проекту.

Можно выполнить подключение промышленного котла КВм 2000 кВт ШП по типовой схеме подключения котла завода изготовителя. В зависимости от количества котельных агрегатов, наличия или отсутствия теплообменников существуют различные варианты. Механический отопительный котел на угле КВм 2000 кВт с топкой ТШПМ может быть подключен по схеме подключения, представленной ниже.

Все котельно-вспомогательное оборудование для подключения котла 2000 кВт с ТШПМ вы можете купить на нашем котельном заводе. Также наш завод оказывает услуги по проектированию, монтажу, шеф монтажу и пуско-наладке котельных.

Безопасность котла

Безопасная эксплуатация котла обеспечивается выполнением требований

  • Инструкции по эксплуатации
  • Правил устройства и безопасной эксплуатации водогрейных котлов с температурой нагрева воды не выше 115 °С
  • Правил технической эксплуатации тепловых энергоустановок

Требования к помещениям котельной регламентируются СП 89.13330.2016 «Котельные установки»

Управление механическим водогрейным котлом КВм 2000 кВт на твердом топливе должно производиться автоматикой безопасности, имеющей сертификат соответствия.

Одним из самых важных устройств, обеспечивающих безопасную эксплуатацию водогрейного котла, является предохранительный клапан. Расчет пропускной способности для каждой мощности приведен в паспорте котла.

Гарантии изготовителя

На заводе изготовителе промышленные механический котел на угле КВм 2000 кВт с ТШПМ подвергается гидравлическому испытанию давлением 0,9 МПа (9 кгс/см2).

Гарантийное обслуживание включает в себя бесплатное устранение скрытых заводских дефектов, замену деталей и узлов вышедших из строя в период гарантийного срока при условии монтажа и эксплуатации оборудования Покупателем в соответствии с его назначением, технической документацией, техническими нормами, правилами ввода в эксплуатацию и эксплуатации данного оборудования. Срок эксплуатации котла 10 лет.

Механический котел с ТШПМ мощностью 1000 и 2500 кВт всегда есть в наличии на нашем заводе. Производство котлов с ТШПМ под заказ осуществляется в течении 20-30 дней.

Срок эксплуатации водогрейного котла с ТШПМ 10 лет.

Чертежи котла КВм 2000 кВт с ТШПМ

Описание товара

    Купить котел квм 2000 квт с тшпм

    Для получения консультации укажите номер вашего телефона
    Смотреь обзор на

    Промышленный водогрейный котел КВм 2000 кВт с ТШПМ ( - мощность 2000 кВт; - твердое топливо уголь; - температура 115 градусов; - отапливаемая площадь* от 16700 до 21900 м2; - отапливаемый объем* от 50000 до 65700 м3 (* диапазон для самого холодного и самого теплого региона РФ)); - применение для отопления производства, жилых зданий, цехов, складов, промышленных предприятий.

    Подобрать мощность котла для вашего объекта
    Тип здания
    Регион
    Населенный пункт
    Вид топлива
    Наружный объем здания (м3)
    Отапливаемый подвал
    Показать подходящие котлы
    Патенты на котельное оборудование

    Патенты

    Смотреть все патенты
    Сертификаты Завода

    Сертификаты

    Смотреть все сертификаты
    Членство в СРО

    Допуски

    Смотреть все допуски
    Отзывы о продукции котельного завода

    Отзывы о продукции котельного завода

    Смотреть все письма
    Аттестованная технология сварки

    Аттестованная технология сварки

    Смотреть все аттестаты
    Цена с НДС
    1 742 000