c 4:00 до 13:00 МСК
sale@kotel-kv.ru
8 (800) 551-70-98
Бесплатно по России
Видео
Фото
Чертеж
Подберите необходимую мощность котла в несколько кликов!
Подбор котла
Уточните ваш запрос, если товар не подходит
Максимальная тепловая мощность, МВт
Топливо

Котел КВ 2.2 с РПК

Цена котла КВ 2.2 с РПК 2 000 100 рублей

Уточнить цену с доставкой до вашего города
Условия поставки:
В наличии на складе
ТК по России и Казахстану
Безналичный расчет
Этот товар вы можете купить в лизинг

Модель с ручной загрузкой топлива

Сброс золы и шлака производится поворотными опрокидывающимися колосниками

Дутье и тяга регулируются шиберами, поставляются в комплекте с котлом

Надежная работа котла обеспечивается изготовлением трубной системы из трубы сталь 10 повышенной прочности

Отапливаемая площадь помещения от 18400 до 24100 м2, объем от 55000 до 72300 м3. Температура воды до 115 С.

Технические характеристики
Комплект поставки
Дополнительно потребуются
Отзывы
Марка котла Котел КВ, Котел средней мощности Габаритные размеры котельного блока, длина*ширина*высота, мм 3100х1850х2110
Вид топки Топка РПК Габаритные размеры котла с топкой, длина*ширина*высота, мм 3100х1850х2720
Максимальная тепловая мощность, кВт 2200 Масса, кг 6500
Максимальная тепловая мощность, МВт 2.2 Тип котла Водогрейный, Промышленный
Максимальная тепловая мощность, Гкал 1.89 Расход топлива среднечасовой за отопительный сезон, кг/ч 226
КПД (УГОЛЬ), не менее, % 80 Температура воды, °C 70-95, 90-115
Аэродинамическое сопротивление, Па (мм. вод. ст.) 230 Тип отопительного котла Твердотопливный
Температура уходящих газов, °C 200 Бренд HeatExpert
Расход топлива при максимальной нагрузке котла (УГОЛЬ), кг/ч 451 Количество контуров Одноконтурный
Расход теплоносителя среды, м³/ч 76 Размещение Напольный
Расход условного топлива, кг/ч 337 Тип камеры сгорания Открытый
Отапливаемая площадь, м² 18400-24100 Управление Электронное
Отапливаемый объем, м³ 55000-72300 Принцип работы твердотопливного котла Классический
Топливо Уголь, Твердотопливный Энергонезависимый нет
Тяга Уравновешенная Тип питания Трехфазное
Низшая теплота сгорания топлива УГОЛЬ, кКал/кг 5230 Встроенный циркуляционный насос нет
Давление рабочей среды, МПа (кгс/cм²) 0.3-0.6 Встроенный расширительный бак нет
Гидравлическое сопротивление при перепаде t, МПа (кгс/cм²) Не более 0.07 (0.7) Энергоэффективность Высокая

Это устройство работает со вспомогательным оборудованием, которое приобретается отдельно. Если вы хотите сразу узнать стоимость всей установки, добавьте заинтересовавшие вас позиции в корзину. Чтобы точно расчитать стоимость доставки до вашего объекта, укажите его адрес в корзине и оправьте нам заявку. Обычно мы отвечаем в течение дня.

Автоматика котла КВр Автоматика котла КВр 2.2 МВт
Тип управляемого оборудования
Котел КВр
Топливо
Твердое
168 000
Насос TD Насос TD80-30 G2 (11 кВт)
Цена скоро
появится
Насос CHL Насос CHL 8-30 (1.1 кВт)
106 100
Дымосос ДН 8 с дв. 15/1500 Дымосос ДН 8 с дв. 15/1500
Производительность, тыс. м³/час
3.6-17
Полное давление, Па
800-2250
214 500
Золоуловитель ЗУ 2,15 Золоуловитель ЗУ 2
Применяемость с котлами, МВт
2.0-2.5
Производительность циклона, м³/ч
9060-13220
100 000
Об этом товаре еще нет отзывов. Будьте первым!
Оставьте ваш отзыв
1
2

1

2

Водогрейный котел 2.2 с топкой РПК. Характеристики:

  • мощность 2200 КВт, 2,2 МВт, 1,89 ГКал;
  • максимальная температура 115 °С;
  • топливо – каменный и бурый уголь;
  • давление не более 0,6 МПа;
  • отапливаемая площадь котла от 18400 до 24100 кв м, отапливаемый объем от 55000 до 72300 м3 (в зависимости минимальной температуры в регионе эксплуатации). Проверить или подобрать мощность котла для вашего региона или любого другого города вы можете по ссылке.
  • устанавливается в котельных административных, производственных зданий и отопительных котельных ЖКХ.

Устройство и описание котла с топкой РПК

Котел КВ-2.2 РПК. Чертеж Котел КВ-2.2 РПК. Чертеж Водогрейный котел 2.2 с топкой РПК (ручными поворотными колосниками) изготавливается из стальных труб диаметром 57 толщиной стенки 3- 3,5 мм сталь 10. Каркас под обмуровку изготавливается из профильной трубы, уголка и швеллера. Тепловая изоляция состоит из плиты ПТЭ. Наружная обшивка котла выполнена из полимерного оцинкованного листа. Для очистки конвективных секций в обмуровке предусмотрены съёмные люки.

Конструкция котла состоит из двух блоков топки и конвективной части. В топку загружается и сжигается твердое топливо – уголь. Боковые и верхняя стенки топки котла выполнены из труб с вваренной стальной полосой. Горячие газы выходят из топки вверху топочной камеры и поступают в конвективные секции. Секции конвективных пакетов устанавливаются двумя блоками. Горячие газы из котельного блока выходят в задней части сверху.

Топка РПК состоит из колосниковой решетки. Решетка набирается из неподвижных и поворотных колосников. Заброс угля в топку производится вручную. На неподвижных колосниках происходит процесс горения топлива, на поворотные колосники вручную сдвигается шлак. Фото топки РПК с ручными поворотными колосниками Фото топки РПК с ручными поворотными колосниками При опрокидывании колосников с помощью рычага происходит сброс шлака из топки в канал. Из канала шлак удаляется транспортером или специальной тележкой. Ряд поворотных колосников располагается в передней, средней или задней части топки, в зависимости от расположения котла относительно канала золошлакоудаления.

Конструкция котла с топкой РПК позволяет облегчить ручной труд кочегара.

Циркуляция котла 2.2 с РПК обеспечивает быстрый нагрев воды и выход на требуемую мощность. Локальные перегревы отдельных зон поверхностей нагрева исключаются точностью производимых расчетов гидравлики. Дренажи и воздушники производят дренирование трубной системы от шлама и удаление скапливающего воздуха.

Твердое топливо сгорает в топке. Горячие газы омывают трубную систему и нагревают воду до 115 °С.

Циркуляция воды в котельном агрегате производится циркуляционным насосом. Для восполнения теплоносителя, теряемого при дренировании и в теплосети, производится подпитка подпиточным насосом.

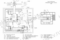
Схема установки котла КВр с золоуловителем Схема установки котла КВр с золоуловителем Для горения топлива вентилятором в короб подается воздух, через отверстия в колосниках воздух поступает в топку. Образующиеся зола и шлак ссыпаются в канал шлакоудаления при повороте рычага топки. Горячие дымовые газы проходят трубную систему котельного блока и поступают в газоходы котельной. В газоходах может устанавливаться золоуловитель ЗУ-2,15. Для преодоления сопротивления газоходов и золоуловителя перед дымовой трубой монтируется дымосос. Далее газы через дымовую трубу поступают в атмосферу.

В котле с колосниками, очень важно не допускать горения угля в топке при выключенном вентиляторе, так как поступающий воздух охлаждает колосники. При выключенном вентиляторе, колосники могут деформироваться от перегрева и их нужно будет преждевременно менять.

Водогрейный котел 2,2 с РПК должен быть укомплектациятован автоматикой. Заводская автоматика ограничивает предельно допустимые параметры работы, температуру и давление воды, минимальный расход теплоносителя, поддерживает минимально допустимое разряжение.

Водно-химический режим водогрейного котла должен быть организован в соответствии с требованиями руководства по эксплуатации и нормативной литературы по тепловым энергоустановкам и тепловым сетям. Для подбора водоподготовительной установки требуется провести химический анализ воды.

Подключение котла с РПК

Схема подключения котла КВ с РПК Схема подключения котла КВ с РПК Подключение и монтаж производятся по проекту.

В зависимости от количества котельных агрегатов, наличия или отсутствия теплообменников существуют различные варианты схем подключения котла.

Все котельно-вспомогательное оборудование для подключения котла 2.2 МВт с топкой РПК вы можете купить на нашем котельном заводе. Также наш завод оказывает услуги по проектированию, монтажу, шеф монтажу и пуско-наладке котельных.

Безопасность котла

Безопасная эксплуатация котла обеспечивается выполнением требований

  • Инструкции по эксплуатации
  • Правил устройства и безопасной эксплуатации водогрейных котлов с температурой нагрева воды не выше 115 °С
  • Правил технической эксплуатации тепловых энергоустановок

Требования к помещениям котельной регламентируются СП 89.13330.2016 «Котельные установки»

Водогрейный котел 2.2 с РПК должен управляться автоматикой безопасности, имеющей сертификат соответствия.

Одним из самых важных устройств, обеспечивающих безопасную эксплуатацию водогрейного котла, является предохранительный клапан. Расчет пропускной способности для каждой мощности приведен в паспорте котла.

Необходимые условия монтажа и эксплуатации котла 2.2 с РПК представлены в паспорте и руководстве по эксплуатации.

Гарантии изготовителя

На заводе изготовителе котел 2,2 с РПК подвергается гидравлическому испытанию давлением 2,2 МПа (9 кгс/см2).

Гарантийное обслуживание включает в себя бесплатное устранение скрытых заводских дефектов, замену деталей и узлов вышедших из строя в период гарантийного срока при условии монтажа и эксплуатации оборудования Покупателем в соответствии с его назначением, технической документацией, техническими нормами, правилами ввода в эксплуатацию и эксплуатации данного оборудования.

Срок эксплуатации водогрейного котла 10 лет.

Описание товара

    Купить котел кв 2.2 с рпк

    Для получения консультации укажите номер вашего телефона
    Смотреь обзор на

    Промышленный водогрейный котел КВ-2.2 с РПК ( - мощность 2.2 МВт; - твердое топливо уголь; - температура 115 градусов; - отапливаемая площадь* от 18400 до 24100 м2; - отапливаемый объем* от 55000 до 72300 м3 (* диапазон для самого холодного и самого теплого региона РФ)); - применение для отопления производства, жилых зданий, цехов, складов, промышленных предприятий, теплиц, гаражей, больниц, школ, садов, для монтажа в блочно модульных котельных.

    Подобрать мощность котла для вашего объекта
    Тип здания
    Регион
    Населенный пункт
    Вид топлива
    Наружный объем здания (м3)
    Отапливаемый подвал
    Показать подходящие котлы
    Патенты на котельное оборудование

    Патенты

    Смотреть все патенты
    Сертификаты Завода

    Сертификаты

    Смотреть все сертификаты
    Членство в СРО

    Допуски

    Смотреть все допуски
    Отзывы о продукции котельного завода

    Отзывы о продукции котельного завода

    Смотреть все письма
    Аттестованная технология сварки

    Аттестованная технология сварки

    Смотреть все аттестаты
    Цена с НДС
    2 000 100